Bungalow Makeover In Plymouth
- Jay Built Construction
- Aug 11, 2015
- 1 min read

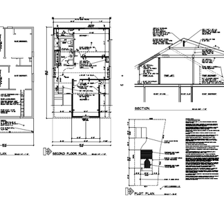
On this home addition project, we added a dormer to a bungalow that included two bedrooms, a loft, and a full five-piece bath. The Plymouth homeowners wanted to create a comfortable space for guests while giving the exterior of the home a much-needed facelift. The gable rakes received new overhangs, and a new shed roof was added along with a masonry porch to give it more of a craftsman feel.
In the bathroom, we installed a custom-built shower, a six-foot drop-in tub with Roman faucet, and two lavatories. The cabinets are Merillat with Hi-Mac tops and under mount bowls. Finishing off the shower is a custom Euro style glass door. Because of the limited area we had to install the bathroom, we were unable to have a window, so we opted for a Velux Sun Tunnel. This option provides an amazing amount of natural light to the bathroom.
A new furnace was added to the attic of the new space, as well as Nu-Wool cellulose insulation. In addition, we installed new Marvin fiberglass windows to create an extremely efficient new space.




















Comments